十二月,大创项目有条不紊的推进着,下文为部分项目的进展情况。
项目一:磁浮列车-桥梁耦合动力响应分析
项目成员:庄文宇(2016级),彭治铭(2016级),龚宇锋(2016级),袁源(2016级)
指导老师:朱志辉
项目负责人邮箱:1018984912@qq.com
指导老师邮箱:zzhh0703@163.com
项目研究意义:此项目的研究目的就是通过研究磁轨关系,得到电磁悬浮系统的动态特性,建立中低速磁浮车桥耦合系统动力学模型,并运用数值仿真的方法研究磁浮车桥耦合动力问题,研究其动力响应,为我国中低速磁浮高架桥的设计提供理论依据。
项目进展情况:
一、前期已完成部分:
1.确定现场工点位置
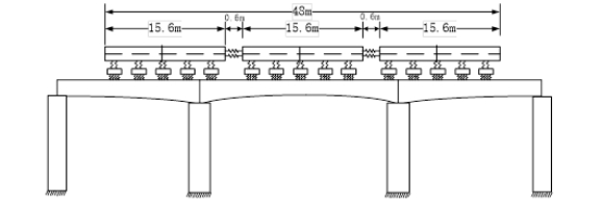
现场试验选取了浏阳河大桥上的一座三跨(85m+110m+85m)变截面预应力混凝土双线(直线)连续梁桥;25m直线简支梁;加速段、减速段25m直线简支梁;及弯道处简支梁进行测量,并研究这些桥梁在运行列车荷载作用下的动力响应。下左图所示为浏阳河大桥及弯道段在地图上的相对位置,直线简支梁在浏阳河大桥附近选取,加、减速段在磁浮列车高铁站附近选取。下右图所示为浏阳河大桥现场图。

初步实验内容
1)获取磁浮线桥梁(简支梁、连续梁和道岔梁)在环境激励及列车荷载作用下位移时程响应,与理论计算结果对比;
2)研究列车荷载作用下的桥梁冲击系数;
3)测量弯道处桥梁在动力荷载作用下的横向位移,便于后期进行弯道处离心作用分析;
4)采用余震法测试振动基频与阻尼比。
2.部分理论计算内容及结果
Ⅰ.车辆荷载

由于磁浮列车车速较低,车-桥耦合作用不明显,故磁悬浮列车采用移动荷载模拟。列车编组形式为前车30t+中车30t+尾车30t,每节列车包含5个转向架,列车子系统与桥梁子系统通过电磁悬浮力相互作用,将每个转向架与桥梁系统之间里的作用形式简化为集中荷载,最终得到一辆车的荷载模拟的形式如下图所示。
Ⅱ.三跨连续梁桥在移动列车荷载下的动力响应分析

根据桥梁的实际状态进行列车过桥的车桥耦合动力仿真分析,计算桥梁的自振频率、竖向位移。车桥动力仿真分析模型由磁浮车辆模型、桥梁模型按照一定的作用关系组合起来的系统,如下图所示。
该阶段项目组运用车辆动力学、桥梁结构动力学、电磁场理论和现代控制理论的研究方法,将磁浮车辆、桥梁、电磁场看作是一个耦合体系,分别建立磁浮车辆、桥梁的运动方程,以悬浮主动控制力为联系纽带,运用数值仿真分析方法分别求解了磁浮交通车桥系统中连续梁桥在单线行车工况及双线行车工况下的动力响应并分析解释得到了合理结果。
磁浮线路25m简支梁为部分变截面简支梁,混凝土强度等级为C50,其抗拉强度标准值为1.89N/mm2,弹性模量取3.45×104MPa,列车运行速度为70km/h。简支梁的力学模型如下左图所示。

通过Ansys软件,选用BEAM188单元建立25m双梁形式的简支梁有限元模型进行分析求解。
该阶段项目组的具体研究内容有:
125m双线简支梁单线行车工况中,直线段简支梁的构件应力情况并构建了应力表。
225m双线简支梁单线行车工况中,转弯段简支梁的构件应力情况并构建了应力表。
325m双线简支梁双线行车工况中,在会车情况下简支梁的应力情况并构建了应力表。
二、现阶段进展
近阶段项目组根据能量法建立了车辆子系统运动方程,并根据振型叠加法建立高架轨道梁运动方程,采用基于轨道不平顺功率谱离散数值模拟的三角级数法,对长沙磁浮线的轨道不平顺进行数值模拟。
此外项目组还研究了磁浮梁桥冲击效应,分别讨论了车重、车速、桥梁阻尼比、车桥长比及基频比对简支梁动力系数的影响,跟随研究生课题组前往长沙磁浮专线现场试验,用激光雷达测量了列车过桥时测点位置的位移响应。
三、下一步计划
在接下来的三个月内,项目组将会整理现场试验所得数据,并与虚拟仿真所得理论值进行比较,验证其准确性,同时撰写论文及项目总结报告,并向期刊投稿。
项目二:高层建筑火灾人员疏散逃生方式研究
项目成员:尹艺蒙(2017级),李春晓(2017级),陆佳慧(2017级),曾文欣(2017级),王岚郁(2017级)
指导老师:徐志胜、谢宝超
项目负责人邮箱:18844580287@163.com
指导老师邮箱:xuzhsh82@163.com
项目研究意义:本项目通过研究高层建筑火灾人员疏散逃生心理行为、可用安全疏散时间、路径,并设计一款切实有效的辅助逃生工具,来保证高层建筑火灾人员可以安全逃生疏散。
项目进展情况:
1.前期调研
项目组成员分别进行了相关调研,调研内容为高层建筑火灾案例、国内外高层建筑火灾研究现状、高层建筑人员疏散设计、高层建筑疏散装置以及高层建筑火灾情况下人员疏散心理及行为,并在调研之后完成了调研报告。
与老师学长交流
2.问卷调查
项目组针对高层建筑火灾中人员疏散心理及行为等问题设计调查问卷,利用网络调查方式,收集不同地域、职业、年龄、性别的人的心理及行为,并利用统计分析方法对数据进行分析,得出结论。
3.软件学习
进行了AutoCAD、Pyrosim和Pathfinder等相关软件的学习,学习内容包括:软件基本操作、相关案例模拟与分析等。
4.物理模型建立
项目组利用AutoCAD绘制了高层建筑平面图;
利用Pyrosim建立高层建筑火灾烟气运动预测物理模型,设置火源,布置相关测点,目前一层商店、二层宴会厅、五层客房的工况及分析已经完成;
利用Pathfinder建立高层建筑火灾人员疏散行为预测物理模型,设置人员性别、年龄比例,目前一层商店、二层宴会厅、五层客房的工况及分析已经完成。
下左图为Pyrosim模型,右图为Pathfinder模型。


下一步计划:
目前项目组已经基本完成了论文撰写,下一步有如下计划:
Ⅰ.进一步学习相关专业基础课
Ⅱ.修改项目报告及论文格式
III.完成工况模拟及数据分析
项目三:基于图像理解技术的沥青路面损伤状态的非接触式智能检测方法
项目成员:刘懿庆(2017级), 王兴乐(2017级),喻嘉辉(2017级),姜智博(2017级)
指导老师:韩征
项目负责人邮箱:1678743533@qq.com
指导老师邮箱:xuzhsh82@163.com
项目研究目的及意义:项目有助于促进沥青路面损伤识别状态检测的自动化,智能化,以更好地保证沥青路面病害的治理效果,提升其整体质量。
项目进展情况:
一、研究过程及内容
沥青路面典型病害特征的图像采集
本项目的图像数据来源分为路面现场采集和互联网获取两个方面。
在图像现场采集方面,本项目组成员于七月份采集了G107国道河南省许昌至漯河段沥青路面的部分损伤状态图像。在调研过程中发现的病害主要有裂缝和车辙,针对这两种病害,在不同的摄影角度采集了120张样本图像。在互联网采集方面,在网络上选择了80张像素质量较高,裂缝特征较明显的图像作为裂缝样本集。

2.基于卷积神经网络的沥青路面损伤状态识别算法
卷积神经网络(CNN)是多层感知器(MLP)的变种,在各深度学习模型中,应用最为广泛的便是卷积神经网络。项目在研究过程中,根据实际工程需求,将MobileNet网络运用到图像识别算法模型SSD中,用MobileNet网络卷积层的二维深度卷积和三维的点卷积运算代替传统SSD算法中卷积运算,在保证物体检测准确率基本不变的前提下,大幅提高了模型的检测速率。
|
3.图像的深度卷积神经网络数据集构建
对于采集的样本图像数据,需要手工选定识别候选区域。本项目采用的方法是用图像标注工具LabelImg手工框选出每幅图对应的候选区域,生成相应的信息保存在相应的xml文件中,如图1-5所示。

在构建阶段,操作的执行步骤被描述成一个图。在执行阶段,使用会话执行图中的Operation。
在研究的过程中,主要采用了SSD(Single Shot Mulit-box Detection)、Moblienet两种识别模型作为一体化检测网络的基底网,通过设置模型参数对数据集图像进行模型训练。
二.项目的阶段性成果
针对实际工程中沥青路面裂缝的复杂性,以及路面标识、路面车辆、建筑物等因素的干扰,实验分别测试了沥青路面的横向裂缝,纵向裂缝,网状裂缝以及在路面标识、路面车辆、建筑物的干扰的情况下的检测效果。图1-8为沥青路面横向裂缝的检测效果,在图片中有灌木和黄色标线的干扰下,横向裂缝仍可被检测出来,且检测为裂缝的概率为96%。图1-9为纵向裂缝的检测效果,检测的目标框圈出了基本所有的裂缝,且精度可达90%左右。图1-10为网状裂缝的检测效果,候选框基本可达到所有裂缝的框选。图1-11为多干扰因素情况下的裂缝检测情况。图片上有多个路面标线、建筑物以及车辆。从检测效果来看,在复杂路面标线、车辆、建筑物等环境下均能实现有效的图像候选区域提取及概率判断。

横向裂缝检测效果

纵向裂缝检测效果

网状裂缝检测效果

复杂环境下的裂缝检测效果
三、下一步工作计划
数据集的完善
目前对于沥青路面裂缝的识别情况已经达到了预期结果。对于鼓包、泛油、车辙这些常见沥青路面病害还需完善图像数据的收集,并构建起相应的数据集,并完成测试。
成果整理与发表
下阶段将整理前期研究成果,并针对研究内容发表《基于图像理解技术的沥青路面损伤状态非接触式智能检测方法》的论文,并针对研究成果申请专利。
虽然本学期将要结束,但我们大创项目的脚步在热情的鼓舞下永不停歇,也期待着大家的加入。

